2680 Cedar Ridge Street Unit# Proposed Phase 2 Lot# 1 & 2 Lumby, British Columbia V0E 2G5

Waterfront Nearby Acreage

$1,500,000

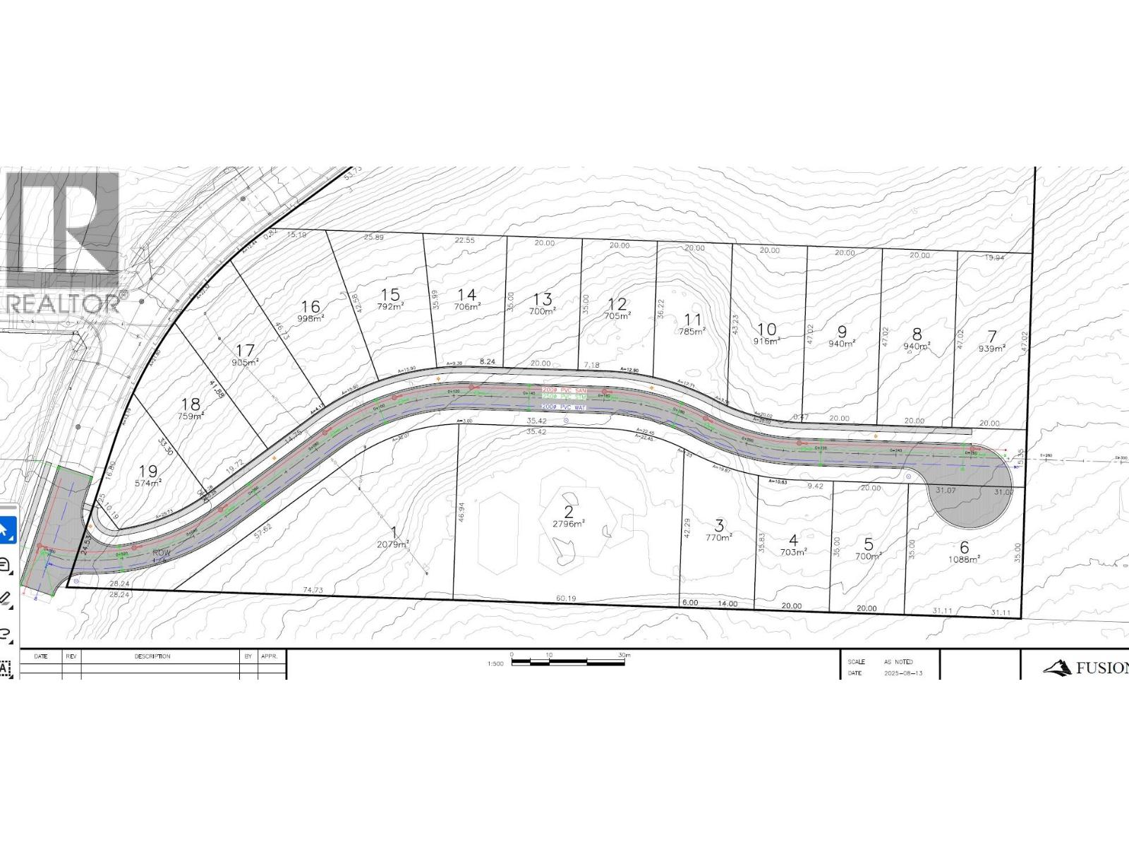
LAND ASSEMBLY – DEVELOPMENT OPPORTUNITY (SUNTOWER SUBDIVISION) Phase 2, Lots 1 and 2 of the Suntower subdivision are now offered as a combined land assembly, presenting an exceptional opportunity for builders, investors, or long-term landholders. Both lots will be delivered with paved road access and full extended city service connections to the lot line, including 400-amp power, municipal water, storm, and sewer, creating a ready-to-build environment. Zoned R7 (Low-Density Residential/RV) within the Regional District of North Okanagan, the site supports single-family, two-family, and secondary-suite development, with a maximum 35% lot coverage and up to 2 storeys (10 m height limit). Based on zoning and lot dimensions, Lot 1 supports an estimated 15,659 Sq. Ft. of potential buildable floor area, while Lot 2 supports approximately 21,070, offering meaningful future redevelopment capacity as demand increases. Lot 2 also includes a beautifully maintained 4,156 sq. ft. log home built in 2004, featuring two primary bedrooms with ensuites, a main three-piece bath, and three generous loft-level bonus rooms. The main floor offers durable tile throughout with efficient in-floor heating powered by a pellet stove, plus a secondary electric option. Both the home and detached garage are finished with long-lasting clay tile roofing (30–80 year lifespan). The property also includes an attached double garage, allowing covered parking for up to five vehicles. This assembly provides strong holding value—ideal for renting out the existing home for 5–10 years to offset carrying costs—while preparing for future redevelopment aligned with the growth and demand of the Suntower subdivision (id:44574)

Property Details

MLS® Number 10321471
Property Type Vacant Land
Neigbourhood Lumby Valley
Amenities Near By Park, Recreation, Schools
Community Features Family Oriented, Rural Setting, Pets Allowed, Rentals Allowed
Features Cul-de-sac
Road Type Paved Road, Cul De Sac
View Type Mountain View, Valley View
Water Front Type Waterfront Nearby

Building

Type Other
Utility Water Municipal Water

Land

Access Type Easy Access
Acreage Yes
Land Amenities Park, Recreation, Schools
Sewer Municipal Sewage System
Size Frontage 442 Ft
Size Irregular 1.2
Size Total 1.2 Ac|1 - 5 Acres
Size Total Text 1.2 Ac|1 - 5 Acres

Utilities

Cable At Lot Line
Electricity At Lot Line
Natural Gas At Lot Line
Telephone At Lot Line
Sewer Available
Water At Lot Line

https://www.realtor.ca/real-estate/27488059/2680-cedar-ridge-street-unit-proposed-phase-2-lot-1-2-lumby-lumby-valley

Contact Us

Contact us for more information

Generating Captcha

Hank Prebushewski

(250) 308-4337

Coldwell Banker Executives Realty
102-2901 32 St
Vernon, British Columbia V1T 5M2

(250) 549-2103
(250) 549-2106
thebchomes.com/

Your Favourites

 

No Favourites Found